Добро пожаловать на http://vipplan.ru

Випплан Кострома - это тысячи проектов домов в нашем каталоге!

Вы всегда сможете найти для себя проект дома вашей мечты! Даже если этого не случилось, мы готовы в любую минуту предложить проект индивидуального дома.

Забыли пароль?
Вы еще не регистрировались?

Перейдите по ссылке ниже на страницу регистрации.

Регистрация...

Внимание!!!

В проектную документацию могут быть внесены изменения любой сложности, в соответствии в Вашими пожеланиями!

Полезные статьи

Установка систем вентиляции

Проектирование и установка систем вентиляции начинается на этапе создания проекта дома, в котором, наряду с газо- и электрификацией, водоснабжением и системой канализации, проектируется система вентиляции...

Приобретение земельного участка в собственность

Вы собираетесь приобрести участок. Прежде чем принять окончательное решение, тщательно изучите местность, на которой находится ваш участок, внимательно осмотрите местность. Узнайте о близости реки или других водоемах, всмотритесь в рельеф. Каждый из факторов может иметь неоспоримые плюсы, а также минусы, способные повлиять на окончательное решение. Стоит принять во внимание, что земельные участки, которые продаются «напрямую», дешевле тех, которые реализуют, пользуясь услугами посредников....

Проекты домов и коттеджей > Каталог проектов домов > Проект просторного дома из газобетона Vg1344

Проект просторного дома из газобетона Vg1344

Проект просторного дома из газобетона
Зарегистрируйтесь

Проект № Vg1344


Техническое описание
Общая площадь: 310.67 м2
Жилая площадь: 116.16 м2
Высота здания: 8.9 м
Размеры дома: 20.4м×16м
Кол-во комнат: 8
Цокольный этаж: нет
Гараж: нет
Мансарда: есть

Kонструкция
Фундамент: Монолитный
Перекрытия: Монолитная плита
Материал стен: Газобетон

Архитектурный раздел
Конструктивный раздел
Инженерный раздел
АР+КР - 84 000 (Со скидкой 20%)
АР+КР+ИР - 192 850 (Со скидкой 50%)
Проект индивидуального одноэтажного жилого дома с мансардой, размерами 20,40 х 16,00 м. Наружная отделка здания – штукатурка и клинкерная плитка. Цоколь – клинкерная плитка. Кровля – металлочерепица. Фундамент – монолитная ж/б плита под всей площадью дома. Наружные стены: газобетонные блоки, штукатурка, клинкерная плитка. Внутренние стены и перегородки – кирпичные и каркасные с ГКЛ. Отделка вентканалов и дымоходов – штукатурка. Перемычки – монолитные ж/б и сварные из профиля проката. Пол первого этажа – пол по грунту. Межэтажное перекрытие - монолитное железобетонное Крыша многоскатная. Окна металлопластиковые, выполненные по индивидуальному заказу.
Генплан застройки участка / Паспорт проекта 7000 руб / 10000 руб
Инженерный раздел (полный) 108850 руб (155500 руб)
Смета на строительство 77750 руб
Теплотехнический расчет материалов стен Бесплатно
Стоимость проекта со незначительнми изменениями 97200 руб
Стоимость проекта со средними изменениями* 120600 руб
Стоимость проекта со значительными изменениями** 126800 руб

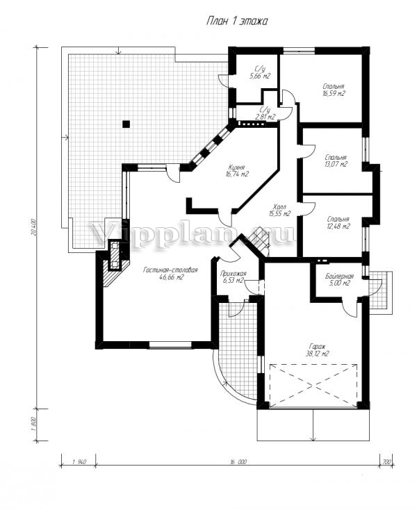
План первого этажа


Прихожая — 6,53 м2
Холл — 15,55 м2
Гостиная — 46,66 м2
Кухня — 16,74 м2
С/у — 5,66 м2
С/у — 2,81 м2
Спальня — 16,59 м2
Спальня — 13,07 м2
Спальня — 12,48 м2
Бойлерная — 5 м2
Гараж — 38,12 м2

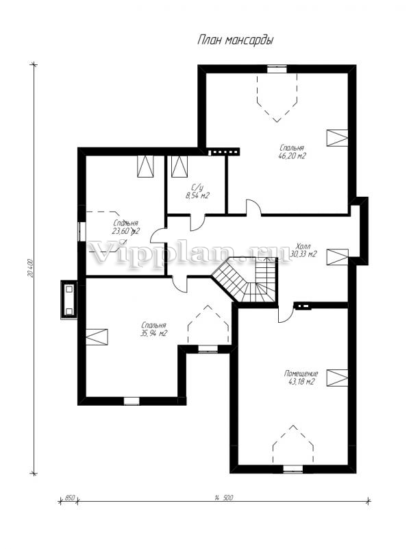
План мансардного этажа


Холл — 30,33 м2
Помещение — 43,18 м2
Спальня — 35,94 м2
Спальня — 23,60 м2
С/у — 8,54 м2
Спальня — 46,20 м2
Проект просторного дома из газобетона Проект просторного дома из газобетона Проект просторного дома из газобетона Проект просторного дома из газобетона

Модификации проектов

Внесение изменений и привязка к участку строительства

В любой из проектов от компании VIPplan - Кострома по вашему желанию могут быть внесены изменения в материалы стен, материалы наружной отделки дома, а также будет произведена адаптация проекта под конкретный регион строительства (с учетом грунтов региона, геологических особенностей вашего участка и местных климатических условий) - БЕСПЛАТНО !!! (кроме проектов со скидкой и проектов наших партнеров).

Любой из проектов, размещенных на сайте kostroma.vipplan.ru мы можем выполнить из требуемых вам строительных материалов: ячеистый бетон (газобетон, пеноблок), керамоблок, кирпич, шлакоблок, бетонный блок, дерево (брус, клееный брус), каркасная технология (деревянный каркас, металлокаркас (ЛСТК)).

Фасад дома и его наружную отделку так же возможно выполнить с применением различных облицовочных материалов: структурной штукатурки, (с утеплителем и без), сайдингом (пластиковый или металлосайдинг), фиброплитами, кирпича.

 
6 Избранные
проекты

Доставка проектов по России: Москва (Московская область), Санкт-Петербург (Ленинградская область), Краснодар, Ростов-на-Дону, Ставрополь, Сочи, Волгоград, Новосибирск, Белгород, Брянск, Воронеж, Саратов, Хабаровск, Астрахань, Нальчик, Владикавказ, Екатеринбург, Тюмень, Самара, Нижний Новгород, Казань, Пермь, Уфа, Челябинск, Красноярск, Ханты-Мансийск, Иркутск, Курган, Оренбург, Омск, Томск, Барнаул, Новокузнецк, Кемерово, Абакан, Чита, Якутск, Южно-Сахалинск, Петропавловск-Камчатский и страны ближнего зарубежья: Белоруссия, Украина, Казахстан